2 locali in Vendita
Brandizzo
€ 128.000
65 mq
1 Camere
1 Bagni
2 Locali
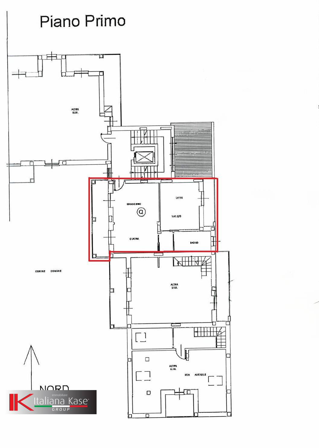
A Brandizzo, in elegante palazzina di recente costruzione, appartamento di due locali sito al primo piano.
L'appartamento si sviluppa con ingresso living su soggiorno con cucina a vista, disimpegno, bagno con ampia doccia e camera da letto. La zona giorno e la zona notte hanno entrambe affaccio su balcone.
La proprietà è dotata di riscaldamento a pavimento, centralizzato con termostato autonomo, climatizzatori, antifurto, portoncino blindato, video citofono, infissi con vetro camera e zanzariere.
Nelle spese di gestione è compresa la quota del riscaldamento.
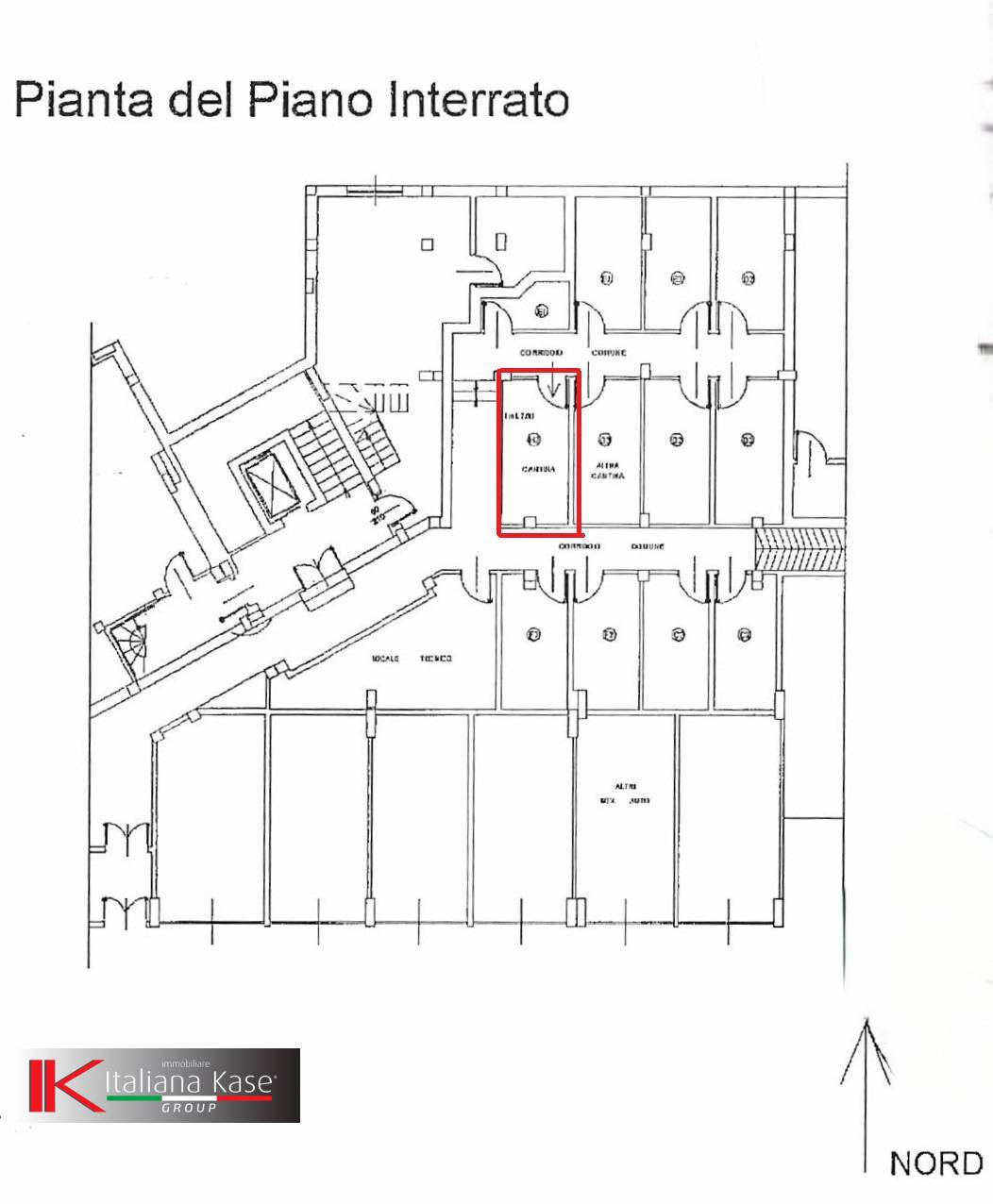
Box auto singolo e cantina di pertinenza. Possibilità di acquisto dell'arredo.
La palazzina si trova in una zona residenziale tranquilla e ben servita, a pochi passi dai principali servizi e dall'imbocco dell'autostrada.Ideale per single o giovani coppie, questo 2 locali è una soluzione perfetta per chi cerca un'abitazione moderna e confortevole, pronta da abitare.
Classe energetica
EP glnr: 82.18 kwh/m²
Potrai vederlo comodamente da casa tua.
Prenota ora































